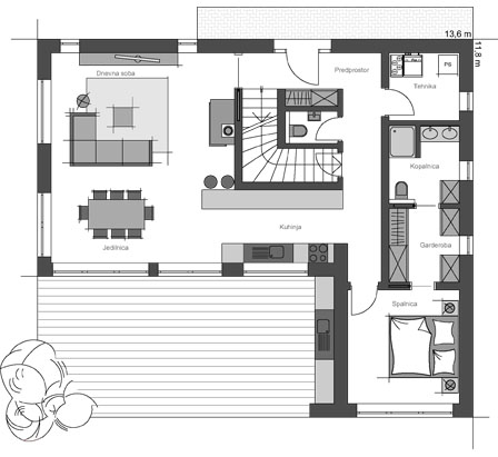
ziherGRUNDRISS DES HAUSES - ERDGESCHOSS

Die ausgezeichnete Raumaufteilung wird Sie völlig begeistern

Žiher Häuser zeichnen klare Linien und große Glasflächen aus. Großzügige und helle Räume zaubern ein Zuhause, in dem Sie die Routine des Alltags übertreffen und Ihre Geschichte zum Leben erwecken.

ziherTECHNISCHE DATEN

Haustyp

Modernes Haus

Wohnfläche

145,00m2

Außenmaße

13,60 m x 11,80 m

Dachneigung

1 bis 2 Grad

Dachtyp

Flachdach